天津市蓟州区人民政府 2019年12月3日星期二

无障碍 无障碍 简体 | 繁体 长者模式 长者模式

(市规划资源局蓟州分局)蓟州区古城新城联动城市更新项目一期工程-敬诚云溪园项目建设工程规划许可证设计方案变更公布通知
来源:天津市规划和自然资源局蓟州分局 发布时间:2025-11-07 15:43

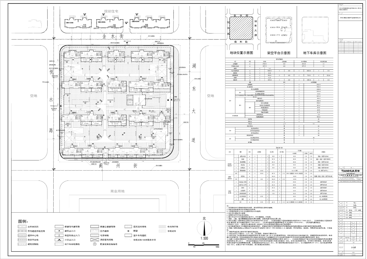
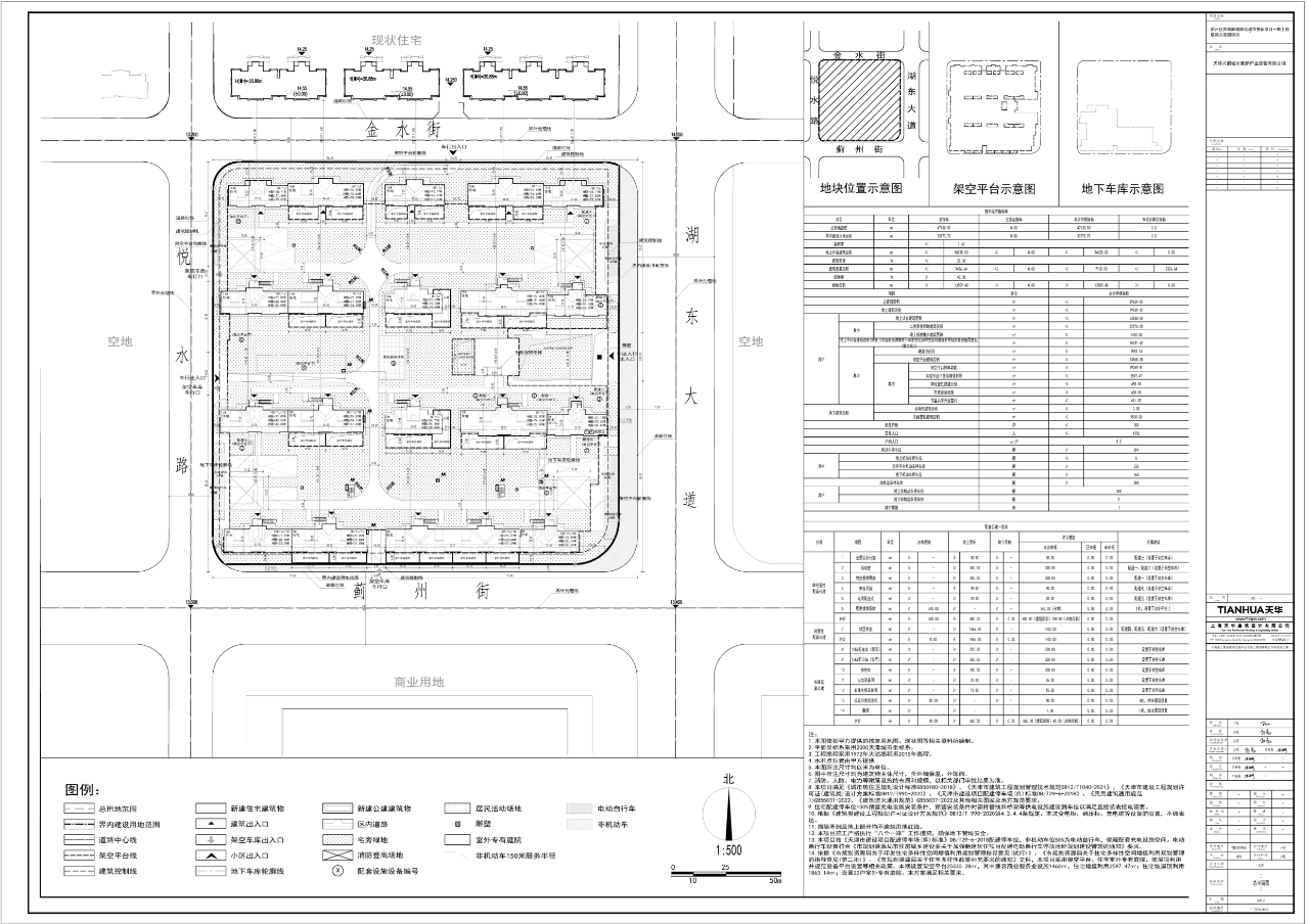
天津市规划和自然资源局蓟州分局于2025117日审定了蓟州区古城新城联动城市更新项目一期工程-敬诚云溪园项目建设工程规划许可证设计方案,依据《中华人民共和国城乡规划法》和住房和城乡建设部《关于城乡规划公示公开的规定》的有关要求,现将该项目建设工程规划许可证设计方案总平面图公布,公布时间至项目规划验收合格。

天津市规划和自然资源局蓟州分局

2025117